114.57平米三居室装修案例,装修价格只花10万元!-鲁能城·中央公馆装修
2023.06.13 3 0
房地产市场的行情让购房者们心痛的不要不要的,购置一套房都需要花费大部分的积蓄,而且装修的费用也不低。今天小编为大家介绍一套114.57平米的三居室,全包装修只花了10万元,快来一起学学吧!
预算:10万
风格:北欧
案例套数:243
设计说明风格:北欧风格业主:本案业主一家三口,有一个2岁的宝宝,平常老人家来帮忙带孩子设计元素:北欧简笔画、色块地毯、原木色家具边框等设计思路:在和业主的沟通过程中,发现业主喜欢很简约的风格,因为有孩子不喜欢家里太繁琐,所以主路线以北欧极简风格为主调,用大面积的浅色以及北欧的常规色块花纹来搭配,用窗帘做了类似瑞士旗的样式来衬托整个风格,还有贴近自然的装饰画最后作为全房的点缀。
好的客厅装修可以为整个家庭的装修效果增光添彩,流行的家具、家电、大幅摄影彩照,可使你家气韵不凡、四壁生辉;可以完全体现主人的品味。

家是冰雪中的篝火,任凭天寒地冻,你都可以随心的取暖
无论家里面积大小,卧室都是一个不能忽略的场所。装修时,有些小细节稍不注意,就可能影响到每天的睡眠质量和生活状态。

温馨自然、温馨、惬意、宁静,适合白天工作十分忙碌的上班族

家是心灵上的港湾,任凭狂风暴雨,你都可以安心的停泊
浴室、厕所、洗脸间等各自独立的卫生间,称之为独立型。独立型的优点是各室可以同时使用,特别是在高峰期可以减少互相干扰,各室功能明确,使用起来方便、舒适。无论如何,我们都要把卫生间的防水做到最好!

进入浴室的那一刻,仿佛从初夏迈进深秋,干净清爽
餐厅讲究所谓的“秀色可餐”,作为主人,无论是整体布局,还是软装搭配,都需要追求细节的完美。倾心打造的餐厅不仅凝聚了主人的心血,也会留给朋友一个深刻的印象。

艺术是优良品质经不断组合并筛选出来的精华,是将物体形态的通俗表象,提升凝练为一种高度浓缩、高度概括的抽象形式

家是沙漠里的绿洲,任凭烈日炎炎,你都可以放心的驻足
书房是工作、学习和放松的地方。所以书房的设计,既要显得很宁静,也不能太乏味。一般家庭书房的空间不会很大,所以在设计书房的时候,就需要格外用心,要让书房发挥它最大的价值。

顶着压力在冷硬的工作环境中拼搏了一天后,让家成为心灵的休憩地

都市生活让慢成为一种奢侈,或许只有当我们邂逅一座幸福城,安下一个无优家,才会不由自主放慢脚步
阳台除了晾衣服,也可以把它设置成休闲区或者办公区,所以阳台装修的细节不容小觑。如果阳台是开放式的,且也不打算封装,那么在选择装修材料的时候,需要选择性能比较好的。如果阳台做了封闭,且封闭性较好,那么可以选用内墙乳胶漆,地面可以使用和室内一样的装修材料。

每个地方都展现了设计的魅力,整个场景让人有种在画中游的感觉,进入每个空间都会吸引人的眼球
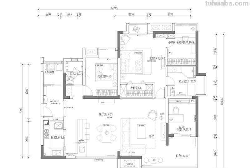
以下就是本套鲁能城·中央公馆小区114.57平米三居室房子的户型图。

户型方正,动静分离,高附赠空间,采光充足
114.57平米的三居室在设计北欧风格的时候,要考虑各个功能区的配色,这样才能保证家装的整体协调,鲁能城·中央公馆小区的这个装修案例,很简单大方,也是现在年轻人喜欢的北欧风格。这间房子全包花了10万,其实在整体的基础装修中是很划算的,所以大家可以参考这户装修进行自己的家装!
免责声明:本网信息来自于互联网,目的在于传递更多信息,并不代表本网赞同其观点。其内容真实性、完整性不作任何保证或承诺。如若本网有任何内容侵犯您的权益,请及时联系我们,本站将会在24小时内处理完毕。

川公网安备51010602001386号